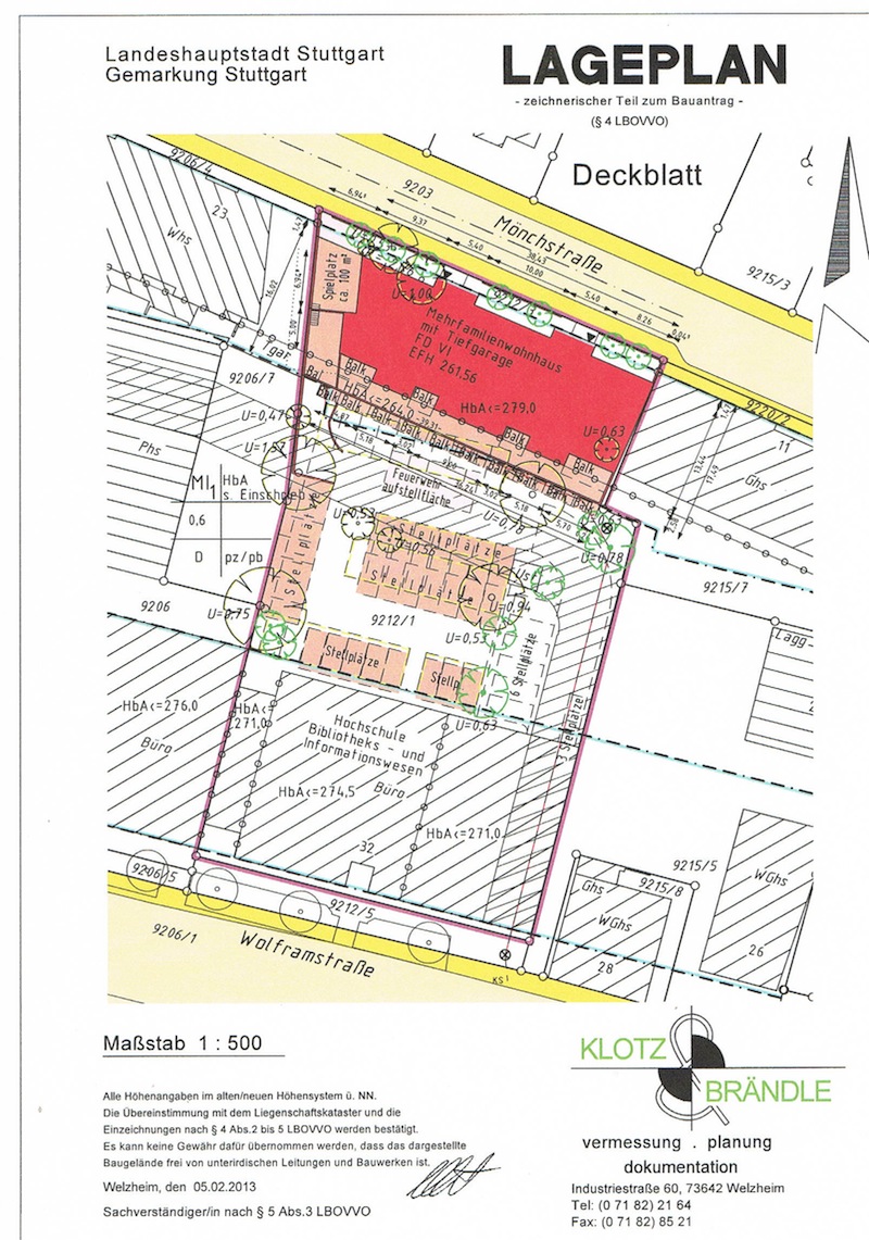
Projekt Beschreibung
+ Mehrfamilienhaus
+ 35 WE mit Tiefgarage / 50 Plätze
Leistungen von PS Projektsachwert GmbH
+ Grundstücks Akquise
+ Grundlagenermittlung / Entwurfsvorschlag
+ Verhandlung Grundstückserwerb
Anmerkungen / Besonderheiten etc.
+ Bauen im innerstädtischen Kontext (nahe S21)
+ Entwurf des maximal rechtlich möglichen Bauvolumens

