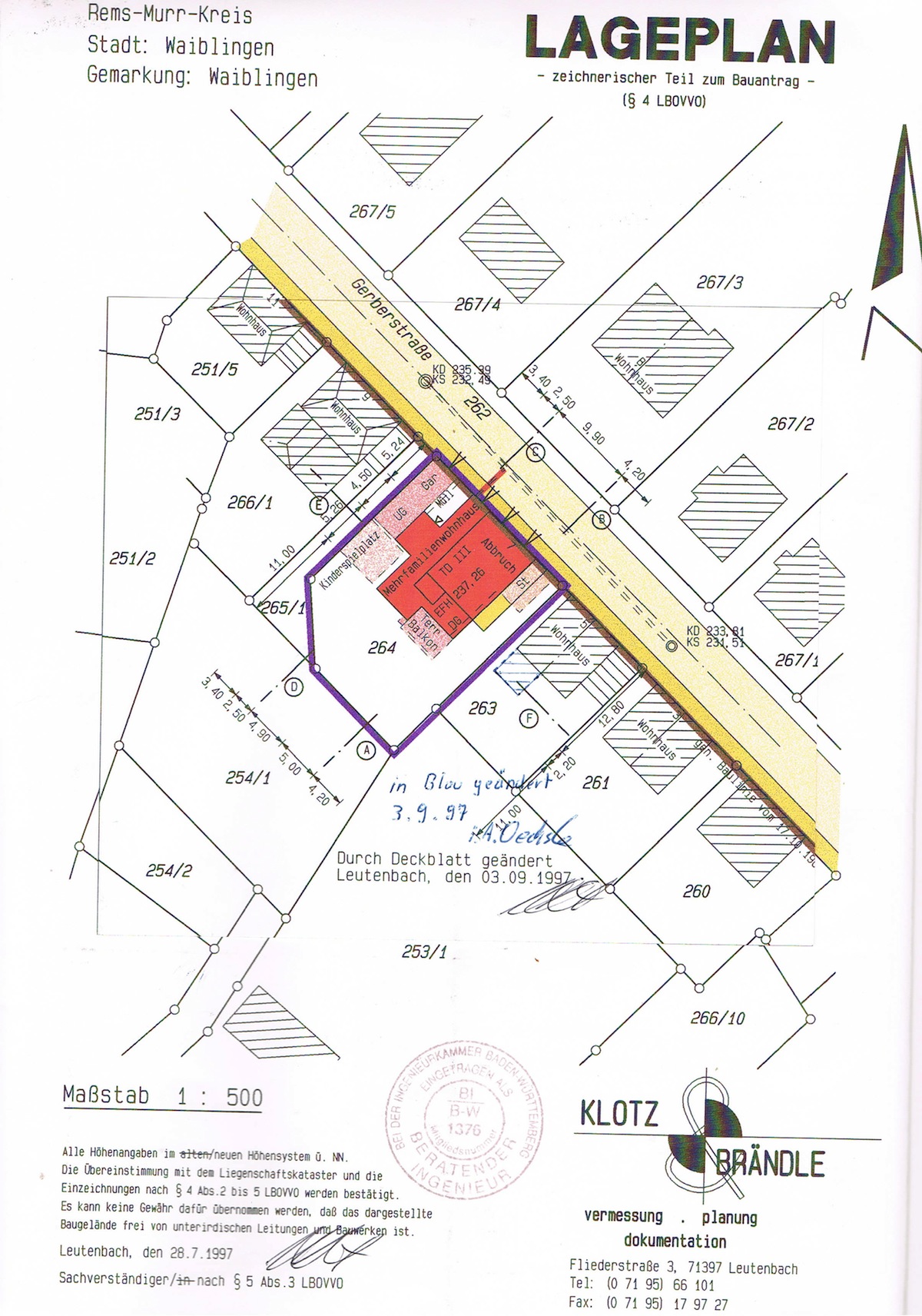
Projekt Beschreibung
+ Mehrfamilienhaus
+ 4 WE mit 4 Einzelgaragen
+ Parkplatz
Leistungen von PS Projektsachwert GmbH
+ Grundstücksbeschaffung
+ Bauprojektentwicklung
+ Gestaltungskonzept
Anmerkungen / Besonderheiten etc.
+ Bauen im Bestand
+ Stadthaus mit modernem Tonnendach
+ Zugang des Gebäudes über die Einzelgaragen
+ Behindertengerechte Planung / Aufzug
+ Entwurf des maximal rechtlich möglichen Bauvolumens

